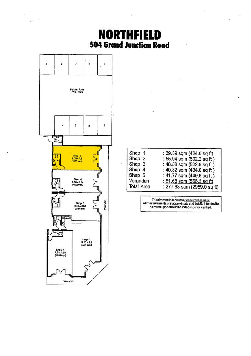
Shop 5/504 Grand Junction Road NORTHFIELD SA
SHOP AVAILABLE - IDEAL FOR OFFICE OR RETAIL
• REVERSE CYCLE SPLIT SYSTEM
• TOILET AND KITCHENETTE
• REAR OFF STREET CAR PARKING
- Secure space of 41 sqm
- Reverse cycle split system Air-conditioner
- Toilet and kitchenette
- Rear off street car parking
If you would like any further information or if you would like to view the property, please contact the leasing agent Michael Kourbelis to arrange an inspection.
Disclaimer: All information provided has been obtained from sources we believe to be accurate. However, neither the agent nor lessor guarantee this information. We accept no liability for any errors or omissions. All interested parties should conduct their own due diligence and seek independent advice.
*Approx.
RLA 134
Make an Enquiry
• TOILET AND KITCHENETTE
• REAR OFF STREET CAR PARKING
- Secure space of 41 sqm
- Reverse cycle split system Air-conditioner
- Toilet and kitchenette
- Rear off street car parking
If you would like any further information or if you would like to view the property, please contact the leasing agent Michael Kourbelis to arrange an inspection.
Disclaimer: All information provided has been obtained from sources we believe to be accurate. However, neither the agent nor lessor guarantee this information. We accept no liability for any errors or omissions. All interested parties should conduct their own due diligence and seek independent advice.
*Approx.
RLA 134