225 South Road MILE END SA
HIGH PROFILE OFFICE PREMISES
HIGH PROFILE OFFICE PREMISES
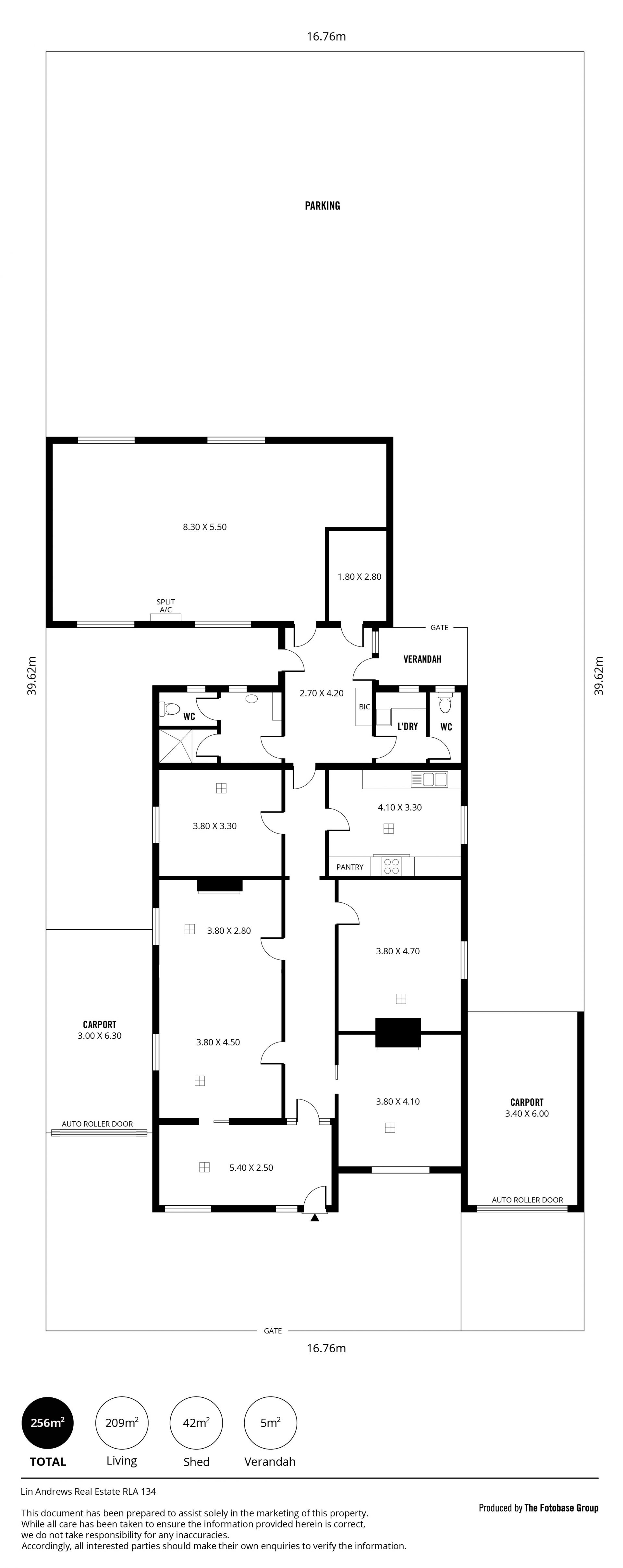
Total Improvements of some 256 sq metres
comprising 7 main rooms including .....
1. Boardroom/Training room of 45 sqm
2. Meeting Room open plan area of some 28 sq metres
plus 2 Toilets, Kitchen, Server Room and
2 carports with remote control Roller Doors,
all fully air conditioned with monitored security system
on fully fenced site of some 664 sq metres.
Large rear car park with additional parking on Northern side.
High profile main road location just 5 mins from CBD and airport
RLA134
Make an Enquiry
Total Improvements of some 256 sq metres
comprising 7 main rooms including .....
1. Boardroom/Training room of 45 sqm
2. Meeting Room open plan area of some 28 sq metres
plus 2 Toilets, Kitchen, Server Room and
2 carports with remote control Roller Doors,
all fully air conditioned with monitored security system
on fully fenced site of some 664 sq metres.
Large rear car park with additional parking on Northern side.
High profile main road location just 5 mins from CBD and airport
RLA134
-
Sold
-
Offices
-
664 sqm
-
256 sqm